Prodáno
  126/, Znojmo, 66902

Prodej rodinného domu 4+kk, 102 m2 - Znojmo, Načeratice

  • Lokalita Znojmo

  • Cena 6 490 000 Kč

  • TypRodinný

  • Velikost 102 m²

Video

Tento nízkoenergetický samostatně stojící zděný bungalov je vaší cestou k dostupnému bydlení a to jen 3 kilometry od Znojma!

+ 4+kk
+ 87 m2
+ 15 m2 dlážděná terasa s pergolou
+ pozemek 365 m2
+ klimatizace
+ rekuperace
+ okna s izolačními trojskly
+ předokenní rolety
+ vybavená kuchyňská linka se spotřebiči
+ k okamžitému nastěhování
+ nízké náklady na energie
+ zahradní domek
+ 3 parkovací místa p

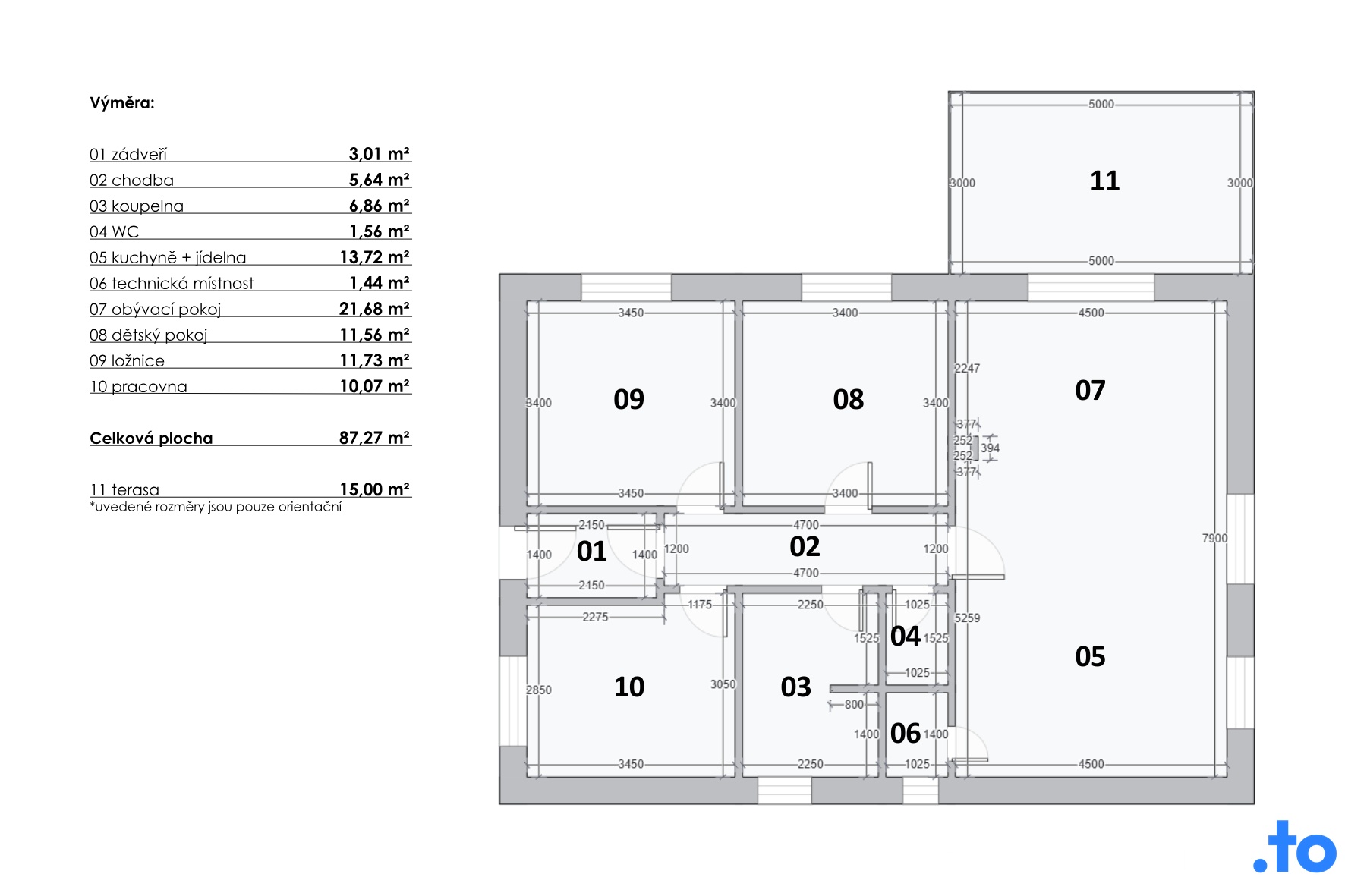
Pokud hledáte moderní dům, do kterého se můžete rovnou nastěhovat bez jakýchkoliv úprav, právě jste ho našli. Nabízí celkovou plochu 102 m2 včetně terasy a je dispozičně řešený jako 4+kk.

Prostorný obývací pokoj s kuchyňským koutem je největší místností v domě s úctyhodnou výměrou lehce přes 35 m2. Poskytne vám plně vybavenou kuchyň se spotřebiči Electrolux (trouba, myčka a indukční deska) a digestoř značky Bosch , dostatek místa pro jídelní stůl i velkou obývací část. Příjemný je také přímý vstup na dlážděnou terasu s pergolou, která je díky svým 15 m2 skvělým místem pro venkovní posezení.

Dům dále sestává z dětského pokoje, ložnice a pracovny, která může v případě potřeby posloužit jako druhý dětský pokoj či pokoj pro hosty. Moderní koupelna disponuje vanou i sprchovým koutem a díky vkusným světlým obkladům má velice příjemnou atmosféru. Ve stejném stylu je také sousedící samostatná toaleta a nechybí ani technická místnost. Nadstandardem jsou uvnitř domu také interiérové dveře značky Doornite s prémiovou výplní DTD.

Zahrada nabídne dostatek prostoru pro dětské hry i určené místo pro bazén. Je pokrytá travnatým kobercem a je vybavená závlahovým systémem, který stačí připojit a bude řešit zalévání za vás. Jistě oceníte také praktický zahradní domek pro úschovu sezónních věcí či zahradních potřeb. Strach nemusíte mít ani z parkování. Před domem s přehledem zaparkujete 3 vozy.

Při výstavbě domu byl kladen důraz na nízké náklady na provoz. Má proto okna s izolačními trojskly, kvalitní dodatečné zateplení včetně foukané izolace půdy a je vybavený klimatizací a rekuperací, která udržuje čistý vzduch v domě bez tepelných úniků. Dům má zároveň 3 možné způsoby vytápění - podlahové topení, klimatizaci a přípravu pro krb v obývacím pokoji. O ohřev vody se stará elektrický bojler o objemu 160 litrů.

Obec Načeratice je částí města Znojma, od kterého leží jen 3 kilometry. Pokud vás tento dům zaujal, rád se s vámi potkám na společné prohlídce! S financováním vám mohou pomoci naši specialisté na hypoteční úvěry.

3D půdorys
2D půdorys
  • Voda: Dálkový vodovod
  • Topení: Jiné, Podlahové
  • Parkovací místa: 3
  • Terasa: Ano
  • Zařízený: Částečně
  • Typ cesty: Asfaltová
  • Doprava: Silnice, Autobus
  • Elektřina: 230V
  • Velikost pozemku: 365 m²
  • Druh objektu: Samostatný
  • Typ objektu: Přízemní
  • Užitná plocha: 102 m²
  • Vlastní parkování: Ano
  • Typ budovy: Cihlová
  • Lokalita: Znojmo
  • Typ nabídky: Prodej
  • Lokalita kraj: Jihomoravský kraj
  • Lokalita obec: Znojmo
  • Stav stavby: Velmi dobrý
  • Právní servis: včetně právního servisu
  • Průkaz energetické náročnosti: vyhláška 78/2013 Sb
Viktor Raška
Zakladatel skupiny .to

Viktor Raška

Chci kontrolu smluv zdarma