Prodáno / Pronajato
Na Kališti  571/, Chýně, 25303

Prodej bytu 3+kk, 76 m2 - Chýně

  • Lokalita Chýně

  • Cena 8 490 000 Kč

  • Typ3+kk

  • Velikost 76 m²

Video

Byt, který poskytne skvělé zázemí pro rodinný život. Přesně to nabízí toto 3+kk s vyhrazeným parkovacím místem a velkorysou předzahrádkou s přístřeškem nacházející se v klidné zástavbě rodinných domů. To vše jen 15 minut autobusem na Zličín nebo 30 minut vlakem na Smíchov.

To nejdůležitější v bodech:
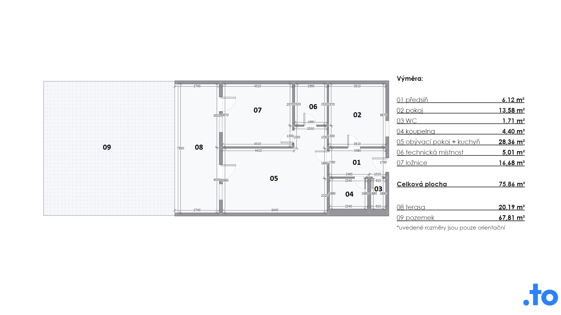
- Celková užitná plocha 164 m2
- 3+kk – 76 m2
- předzahrádka 88 m2
- částečně vybavený
- nízké měsíční náklady
- parkovací stání
- poklidné sousedství
- dostupnost do Prahy (10 minut auto, 15 minut bus, 30 minut vlak)

Toto prostorné a navíc vybavené 3+kk nabízí 2 ložnice, obývací pokoj s kuchyňským koutem, koupelnu s rohovou vanou, samostatnou toaletu, technickou místnost s regálovým systémem a skutečně prostornou předzahrádku o ploše 88 m2. Část předzahrádky je zastřešena pergolou zajišťující dostatek soukromí. K bytu náleží i vyhrazené parkovací stání.

Byt je částečně vybavený nábytkem i všemi důležitými spotřebiči v podobě myčky, lednice i pračky. V případě zájmu o prázdný byt zajistíme vyklizení.

Byt se nachází v prvním nadzemním podlaží a je orientovaný na západ. Díky možnosti využít prostorné zahrádky s přístupem francouzským oknem z obývacího pokoje i ložnice je ideálním místem jak pro lidi pracující z domova, kteří však potřebují zůstat v blízké dojezdové vzdálenosti do Prahy, tak i rodiny s malými dětmi, které ocení oplocené zatravněné prostředí poskytující bezpečné místo pro hraní.

Díky vlastnímu elektrickému kotli bude mít budoucí majitel možnost ovlivnit své výdaje na energie.

Dům, ve kterém se byt nachází, leží v okrajové části Chýně. Do Prahy se dostanete za 10 minut autem, případně za 15-30 minut autobusem či vlakem. Přímo před domem začíná nově vybudovaná in-line dráha pro bruslení, v pěší dostupnosti pak najdete moderní dětské hřiště, restauraci, supermarket BILLA, lékárnu, školku i základní školu.

Zaujal Vás tento byt? Rád Vás přivítám na prohlídce!

3D půdorys
2D půdorys
  • Voda: Dálkový vodovod
  • Parkovací místa: 1
  • Terasa: Ano
  • Zařízený: Částečně
  • Typ cesty: Asfaltová
  • Doprava: Vlak, Dálnice, Silnice, Autobus
  • Elektřina: 230V
  • Druh objektu: Řadový
  • Užitná plocha: 76 m²
  • Vlastní parkování: Ano
  • Typ budovy: Dřevěná
  • Lokalita: Chýně
  • Typ nabídky: Prodej
  • Lokalita kraj: Středočeský kraj
  • Lokalita obec: Chýně
  • Stav stavby: Velmi dobrý
  • Právní servis: včetně právního servisu
Viktor Raška
Zakladatel skupiny .to

Viktor Raška

Chci kontrolu smluv zdarma