Prodáno / Pronajato
Místecká  438/, Praha, 19900

Prodej bytu 3+1, 65 m2 - Místecká, Praha

  • Lokalita Praha

  • Cena 5 290 000 Kč

  • Typ3+1

  • Velikost 65 m²

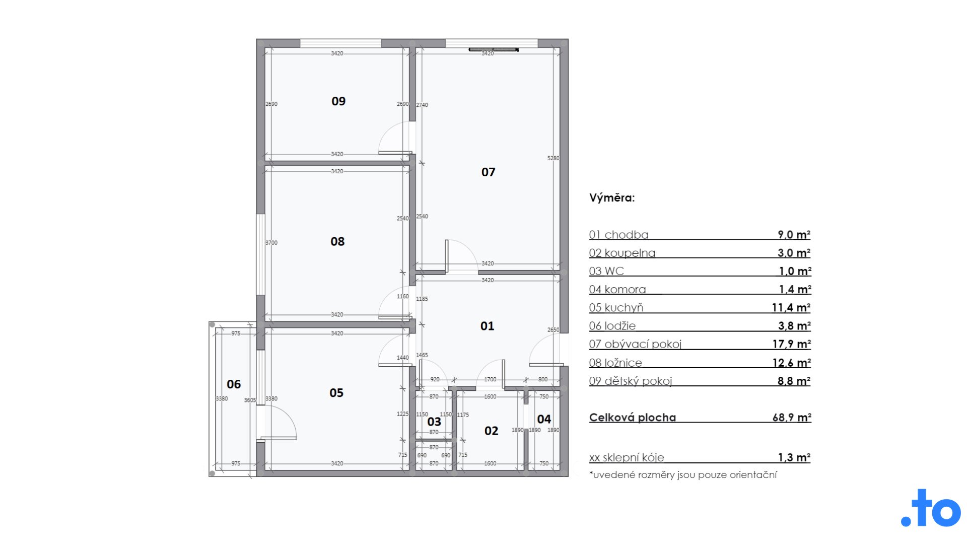
Byt v osobním vlastnictví o dispozici 3+1 a užitné ploše 65,1 m2 se zasklenou lodžií 3,8 m2 a sklepní kójí 1,3m2. To vše v lokalitě se skvělou dostupností MHD a kompletní občanskou vybaveností. Původní stav bytu s jádrem vybízí k rekonstrukci dle představ nových majitelů, kteří jistě ocení skvělý stav celého domu po nedávné kompletní revitalizaci. Nově jsou udělaná plastová okna, zasklené lodžie, zateplení a fasáda, společné prostory i výtahy. Díky tomu se nemovitost pyšní energetickou náročností kategorie B – úsporná.

To nejdůležitější v bodech:
- užitná plocha 65,1 m2 + lodžie 3,8 m2 + sklepní kóje 1,3 m2
- dispozice 3+1
- 7. NP
- zasklená lodžie
- plastová okna
- dům po dokončené revitalizaci
- energetická náročnost B – úsporná
- výborná dostupnost MHD

Hledáte bydlení v Letňanech a nebojíte se rekonstrukce? Hledáte byt za velmi zajímavou cenu? Nyní máte možnost koupě bytu v původním stavu, avšak v domě po dokončené revitalizaci a v žádané lokalitě nedaleko obchodního centra Letňany.

Orientace bytu na jih a východ zajistí dostatek světla a slunečního svitu, díky kterému je byt skutečně teplý. Již tak nízké provozní náklady bytu doplňuje skutečnost, že SVJ v domě pronajímá komerční prostory v řádech statisíců korun ročně a tento příjem rozúčtovává mezi jednotlivé členy.

Pokud Vás tato nabídka zaujala, rád Vás přivítám na prohlídce!

Neváhejte se na mě obrátit ani v případě dodatečných dotazů.

3D půdorys
2D půdorys
  • Voda: Dálkový vodovod
  • Sklep: ano
  • Garáž: Ne
  • Podkroví: ne
  • Lodžie: Ano
  • Balkón: Ne
  • Topení: Ústřední dálkové
  • Terasa: Ne
  • Výtah: ano
  • Zařízený: Ne
  • Typ cesty: Asfaltová
  • Doprava: Dálnice, Silnice, MHD
  • Elektřina: 230V
  • Druh objektu: Samostatný
  • Užitná plocha: 65 m²
  • Vlastní parkování: Ne
  • Typ budovy: Panelová
  • Lokalita: Praha
  • Typ nabídky: Prodej
  • Lokalita kraj: Hlavní město Praha
  • Lokalita obec: Praha
  • Stav stavby: Před rekonstrukcí
  • Právní servis: včetně právního servisu
  • Průkaz energetické náročnosti: vyhláška 148/2007 Sb
Viktor Raška
Zakladatel skupiny .to

Viktor Raška

Chci kontrolu smluv zdarma